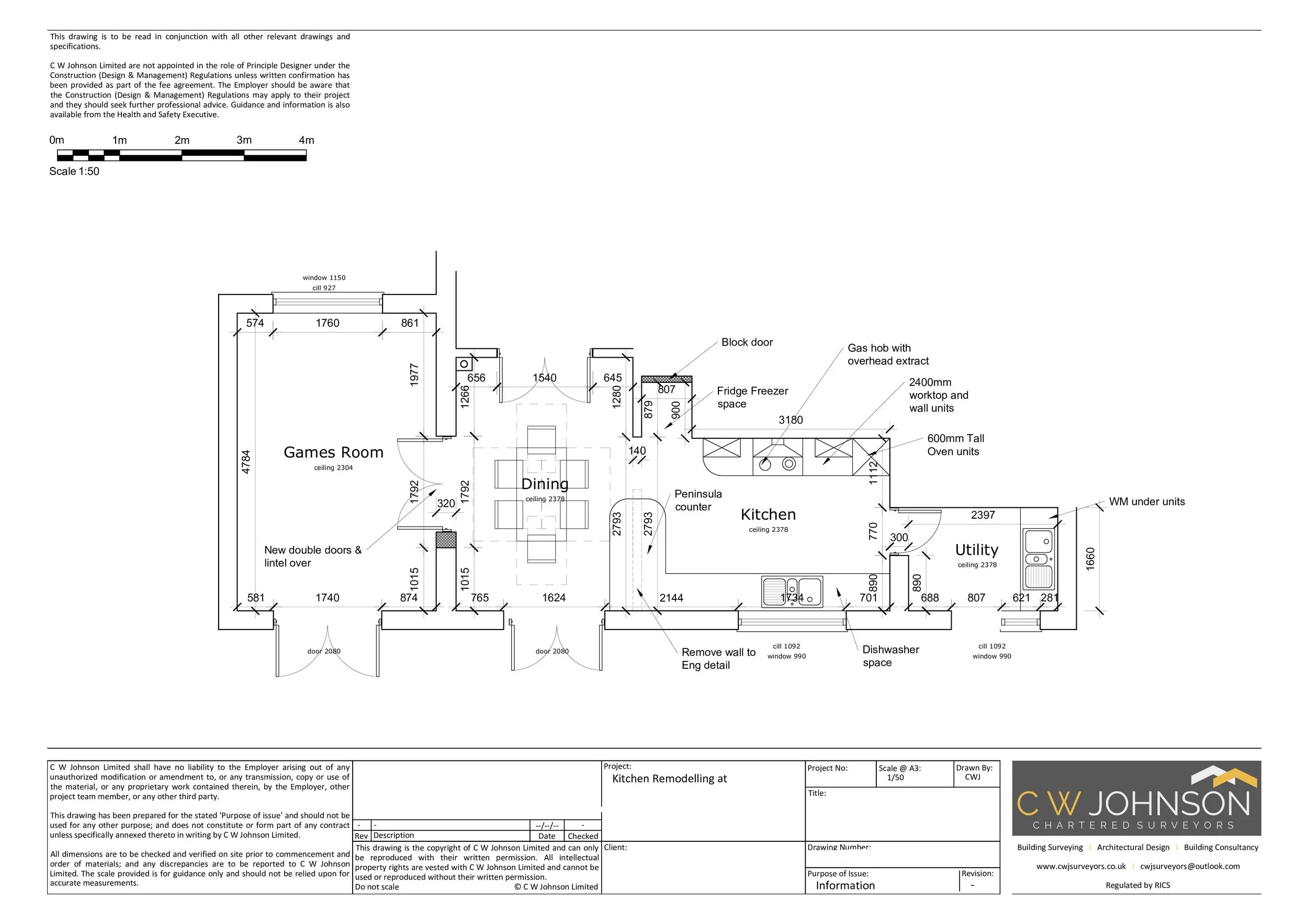
C W Johnson Limited Chartered Surveyors are pleased to have been instructed to prepare drawings for the remodeling of this Kitchen and Dining space at a residential dwelling in Brundall. We were also instructed to submit a Building Regulations application for the structural support beams to facilitate the open plan arrangement.
CATEGORY:
RESIDENTIAL
APPOINTMENT:
BUILDING REGULATIONS
CLIENT:
PRIVATE INDIVIDUAL

