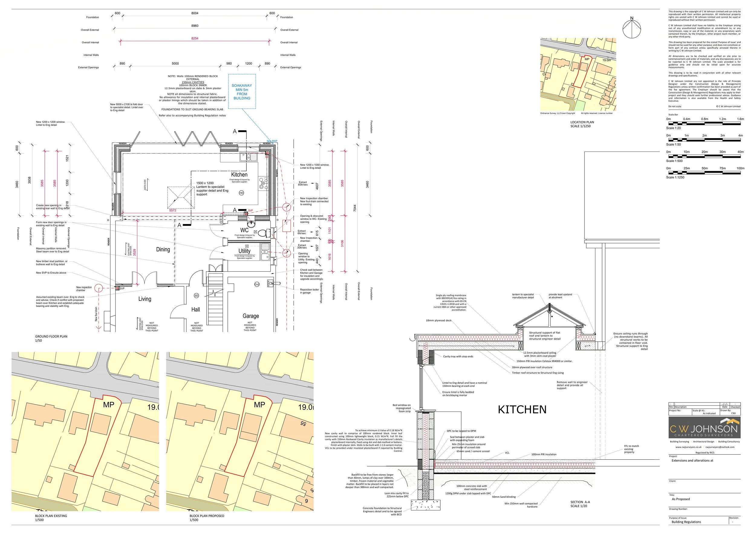
C W Johnson Limited Chartered Surveyors are pleased to have been instructed to prepare Building Regulation drawings and specification documents for a residential extension in Lenwade. Several discussions were held over potential layout options based upon the clients brief, site specifics and practicalities of the scheme with consideration given to the existing site constraints and surrounding design. we look forward to seeing the project developed.
CATEGORY:
RESIDENTIAL
APPOINTMENT:
BUILDING REGULATIONS
CLIENT:
PRIVATE INDIVIDUAL

