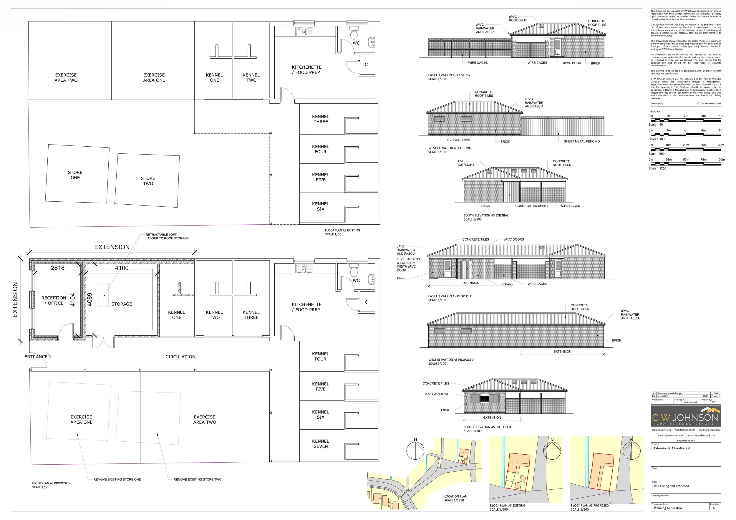
C W Johnson Limited Chartered Surveyors are pleased to have been instructed to prepare planning drawings for the extension and internal alterations of this dogs rehoming center in Great Yarmouth. The Client required enlarged accommodation and reordering of the internal layout. Several discussions were held over potential layout options based upon the clients brief, site specifics and practicalities of the scheme with consideration given to the existing structure and property design.
CATEGORY:
COMMERCIAL
APPOINTMENT:
PLANNING APPLICATION
CLIENT:
PRIVATE COMPANY

